Eladó Családi ház Tét - Központ

136 m2Alapterület 5 Szoba
269 000 €(~ 98 709 550 Ft)
395072Azonosító
További adatok

769 m2 Telek

Utcai Kilátás

Jó állapotú Állapot

Tégla Szerkezet

Házközponti Fűtés

Saját garázs Parkolás

Tömegközlekedés

Nem Amerikai konyhás

2019 Építés éve

Hitelkalkuláció – a részletekért kattintson valamelyik bank logójára!

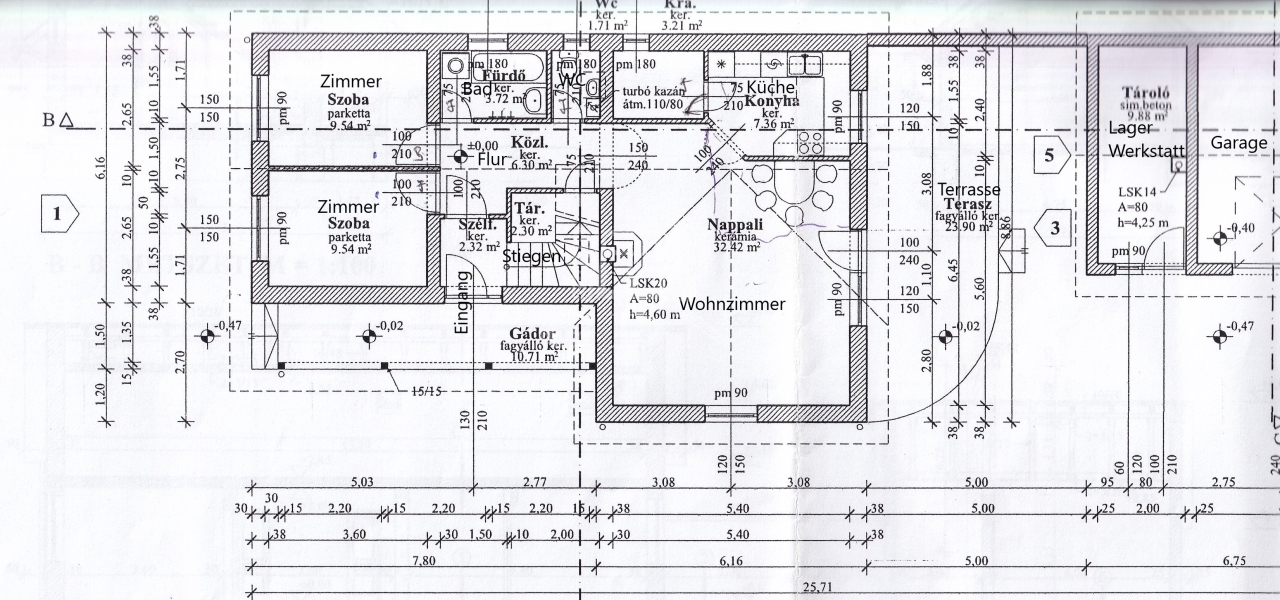
A határtól nem messze, Győr szomszédságában fekszik a 769 m2-es telek, ahol ez a 136 m2 alapterületű családiház elhelyezkedik.

Az alsó szinten egy nappali, konyha, két szoba, tároló, fürdőszoba és wc, míg a felső szinten egy nappali, egy hálószoba gardróbbal és fürdőszoba található. A házhoz garázs, kerti tároló és terasz tartozik.

Az építést 2019-ben fejezték be, melynek során korszerű anyagokat használtak. Gázkazán gondoskodik a melegről padlófűtésen keresztül. a műanyag ablakokat szúnyogháló védi a rovaroktól.

A kertben ültetett gyümölcsfák öntözését saját kút biztosítja.

Tét kiválóan megközelíthető, mégis nyugodt falu a térség legnagyobb városától, Győrtől 20 km-re. Nincs messze a híres Pannonhalmi Apátság, a környék kedvelt turisztikai látványossága.
Végső Tibor

Végső Tibor

Hívjon bizalommal

+36 30 330 Mutasd!

További hirdetéseim

Ingatlaniroda
GDN Ingatlanhálózat - Végső Ingatlanügynökség
+36 46 508 317

Küldjön üzenetet

Visszahívást kérek

Hasonló ingatlanok