Kiadó Üzlethelyiség Székesfehérvár - Főútvonal közelében

500 m2Alapterület 0 Szoba
950 000 Ft /Hó Ár
394283Azonosító
További adatok

Utcai Kilátás

Jó állapotú Állapot

Tégla Szerkezet

Gáz (cirkó) Fűtés

Saját garázs Parkolás

Tömegközlekedés

1985 Építés éve

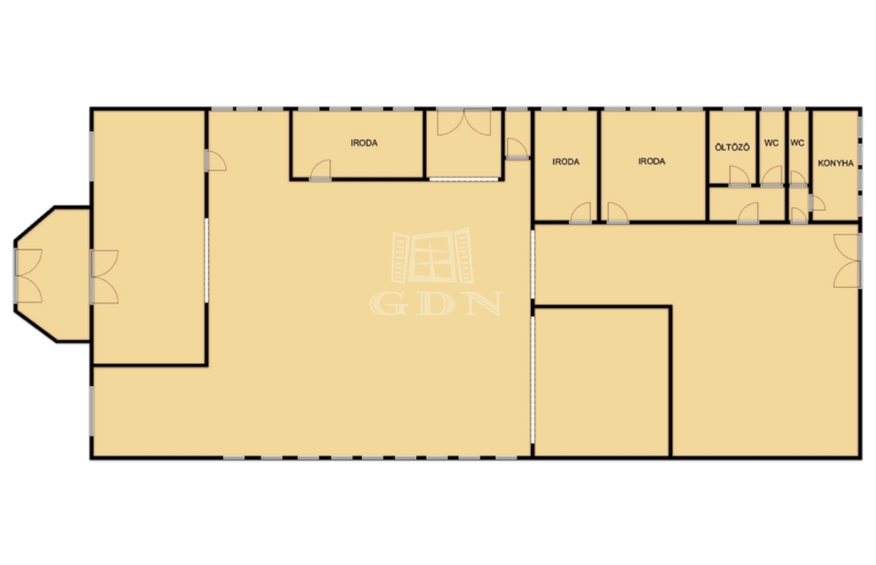
Bip-002127. Raktár utcában 500m2 alapterületű, nagykirakatos, utcafronti kereskedelmi telephely kiadó!

Jellemzők:
‣ ~1000m2 körbekerített, sajáthasználatú udvar
‣ tehergépkocsival is könnyen és korlátozások nélkül megközelíthető
‣ rakodásra alkalmas oldalsó ajtó méretei: 2,9m x 2,6m
‣ udvarban további raktározási lehetőségek (2x25m2)
‣ fűtése gázkazán-radiátor és/vagy hűtő-fűtő klímákkal
‣ áramkapacitás: 3x20A

Az épület szigetelése jó, üzemeltetése energiatakarékos, belső falai könnyűszerkezetűek, igény szerint alakíthatók.
Egyaránt kiválóan alkalmas üzletnek, műhelynek vagy sport tevékenységre.

Bérleti díj: 950.000,- Ft +ÁFA/hó + rezsi + 2 hó kaució



Ha felkeltette érdeklődését, hívja irodánkat bizalommal, éljen ingyenes, személyre szabott hitelügyintézés szolgáltatásunkkal. Segítünk továbbá adásvételhez szükséges ügyvédi közreműködésben, energetikai tanúsítvány, valamint értékbecslés elkészítésében.
Parainé Stefán Edit

Parainé Stefán Edit

Hívjon bizalommal

+36-30-525-Mutasd!

További hirdetéseim

Ingatlaniroda
GDN Ingatlanhálózat - Végső Ingatlanügynökség
+36 46 508 317

Küldjön üzenetet

Visszahívást kérek

Hasonló ingatlanok