Eladó Családi ház Gödöllő - Katona József utca

195 m2Alapterület 8 Szoba
174 890 000 Ft Ár
393791Azonosító
További adatok

1000 m2 Telek

Udvari Kilátás

Jó állapotú Állapot

Tégla Szerkezet

20 m2 Erkély/terasz

Gáz (cirkó) Fűtés

Dupla komfort Komfort

Saját garázs Parkolás

Tömegközlekedés

Nem Amerikai konyhás

Van Kertkapcsolat

1976 Építés éve

Hitelkalkuláció – a részletekért kattintson valamelyik bank logójára!

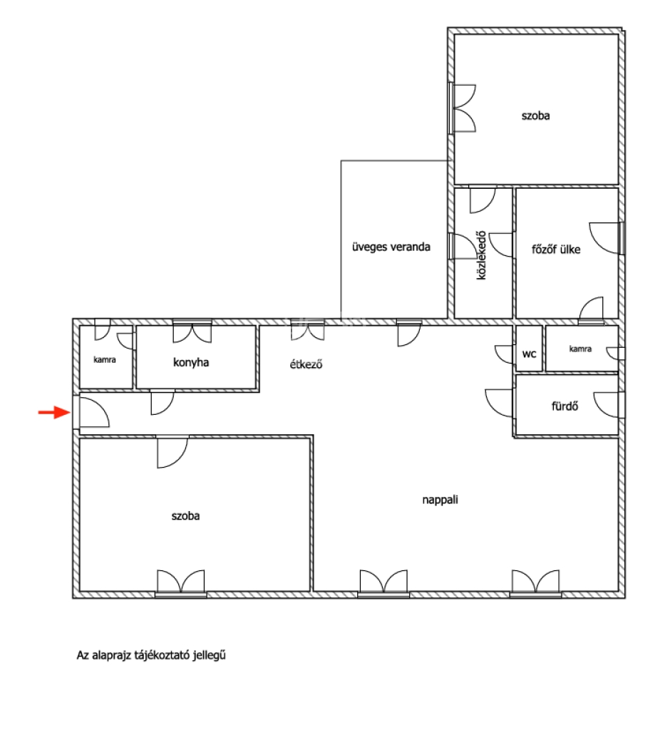
Eladásra kínálok Gödöllő kertvárosi részén egy különleges lehetőségeket rejtő 2 lakásos családiházat.
A ház lényegében 2 külön lakóház egybe építve, egy közös udvarral, amelyen nagy méretű tároló, és garázs is elhelyezkedik.
A 2 ház "L" alaklban került összeépítésre, így teljesen különálló, külön közmű órákkal rendelkezik.
Az első 1967-es tégla, cserép borítással. 3 szoba, fürdőszoba, konyha, étkező.
A második 1976. évben épült, majd 1989-ben a tetőtér került kialakításra.
A földszinten 2 szoba, konyha, fürdőszoba, előtér, a beépített tetőtérben pedig 3 szoba, közlekedő, és fürdőszoba került kialakításra.
Mind két ház fűtése gáz cirkó, radiátoros hőleadókkal, és vegyes tüzelésű kazán is rendelkezésre áll. Szintén külön fűtőberendezések.
A másdik házban a földszinten kílma is beszerelésre került.
A melegvizet gázcirkó, és villanybojler is biztosítja.
Folymataos karbantartás jellemzi az épületeket!
Hívjon bizalommal, tekintsük meg együtt!
Parainé Stefán Edit

Parainé Stefán Edit

Hívjon bizalommal

+36-30-525-Mutasd!

További hirdetéseim

Ingatlaniroda
GDN Ingatlanhálózat - Végső Ingatlanügynökség
+36 46 508 317

Küldjön üzenetet

Visszahívást kérek

Hasonló ingatlanok