Eladó Ikerház Mogyoród - Nagyhomoki út

125 m2Alapterület 4 Szoba
109 900 000 Ft Ár
387769Azonosító
További adatok

500 m2 Telek

Udvari Kilátás

Új Állapot

Tégla Szerkezet

10 m2 Erkély/terasz

Hőszivattyú Fűtés

Összkomfort Komfort

Saját garázs Parkolás

Tömegközlekedés

Amerikai konyhás

Van Kertkapcsolat

2025 Építés éve

Hitelkalkuláció – a részletekért kattintson valamelyik bank logójára!

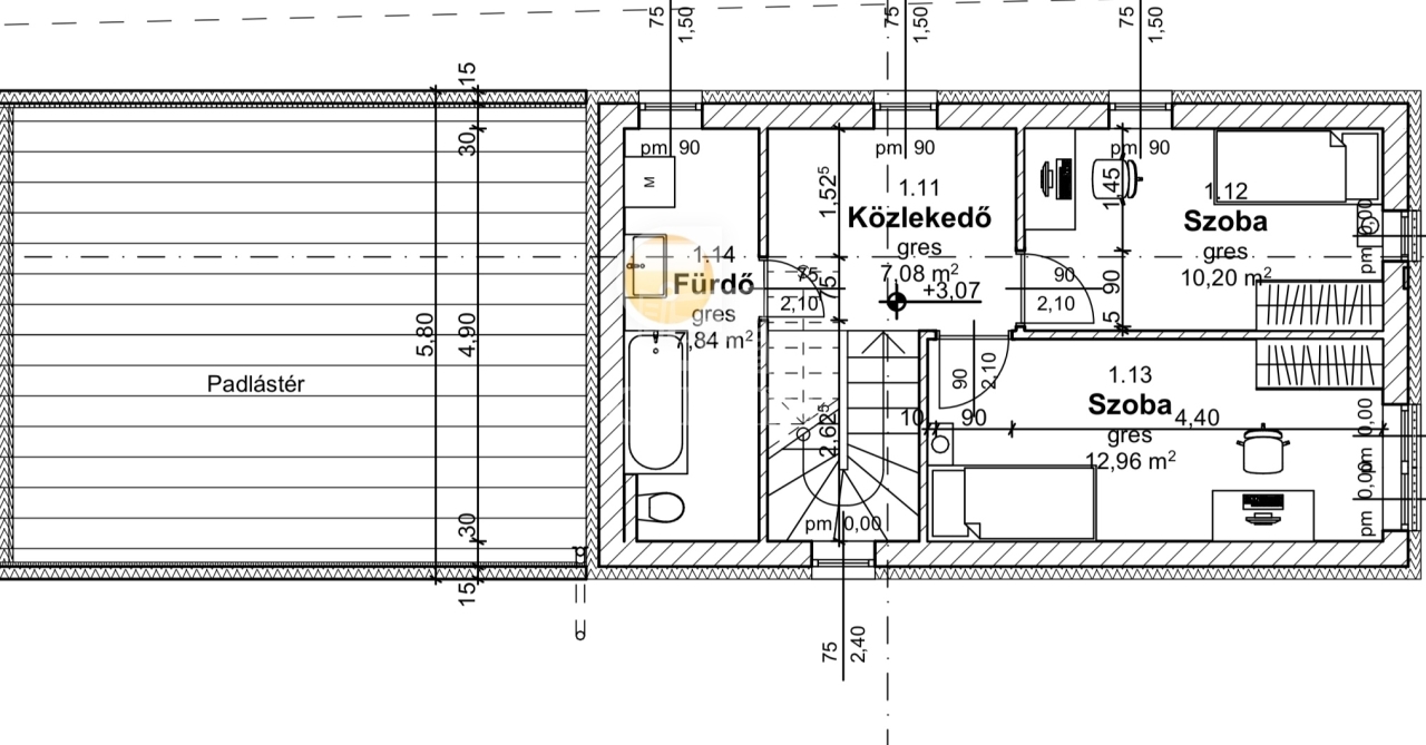
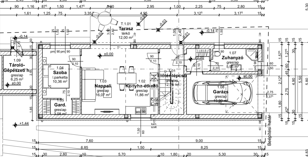
Eladásra kínálok Mogyoródon kertvárosi környezetben, 2026. év augusztusi átadással egy ikerház felet, amely 125 nm nagyságú, és 115 Millió forintba kerül, kulcsrakész állapotban.
Jellemzője, a minőségi alapanyag, átgondolt terv!
- 30 centiméter vastagságú Porotherm tartó téglafalazattal, a szintek között monolit födémmel, vagy Porotherm födémmel készül, a gépészeti rész szerinti területeken a födémbe tekert csővezetékekkel. A válaszfalak pedig 10 centiméter vastagságú téglából lesznek.
- Az emeleti födém szeglemezes tartószerkezettel készül, amely 25 cm hőszigetelést kap, valamint a mennyezeti tartószerkezeten elhelyezett álmennyezeti gipszkarton rendszer kerül kialakításra a gépészeti rész szerinti területeken integrált mennyezethűtéssel. A padlásterek megközelítésére padlásfeljáró beépítésre kerül.
- A földszinten a vízszigetelés fölé 12 cm lépésálló hőszigetelés kerül, melyre fóliafedést terítünk, erre pedig a burkolatok alá 8 centiméter vastagságban úsztatott esztrich beton készül, benne a padlófűtési csővezetékekkel.
- A homlokzaton 15 cm vastagságú EPS80, a lábazaton 10 cm vastagságú XPS polisztirol alapú homlokzati hőszigetelő rendszer készül 2mm szemcsenagyságú dörzsölt vakolattal törtfehér kivitelben. A lábazat igazodik a cserép színéhez.
- A tető, Terrán barna színű cserépfedést kap. Az ereszcsatornák és az egyéb bádogozások alumíniumból készülnek, igazodva a cserép színéhez.
- A külső műanyag nyílászárók, a (a jelenlegi energetikai szabályozásnak megfelelően) 6 légkamrás, háromrétegű hőszigetelő üvegezéssel, argon gázzal töltve, kerülnek kialakításra, bukó-nyíló kivitelben.
-A padlókra a fürdőkben, konyhában, étkezőben, mellékhelyiségekben, kamrában, előszobában, közlekedőben, lépcsőházban, igény szerint választható, hálósan rakott mázas kerámialap, vagy greslap kerül lerakásra. Jelenleg, még választható, burkolatok!
-Nappaliban, hálószobákban, gardróbban közepes kopásállóságú, I.o. laminált parketta választható, 4 centiméter magas szegélyléccel.
-A Fűtést és a használati melegvíz előállítását, valamint a hűtést hőszivattyú végzi. A vezérlés nappali és szobánkénti digitális termosztáttal, és mini hőközpont kialakításával történik.
Az emeleten és a földszinten padlófűtés és mennyezethűtés (vizes és nem lakó helyiségekben, valamint a konyha fölött nincs hűtés) kerül kiépítésre. A cirkulációs rendszer kiépítését az alapár nem tartalmazza. A WC berendezések falsík alatti tartállyal készülnek.

Egyéb információért hívjon bizalommal!
Parainé Stefán Edit

Parainé Stefán Edit

Hívjon bizalommal

+36-30-525-Mutasd!

További hirdetéseim

Ingatlaniroda
GDN Ingatlanhálózat - Végső Ingatlanügynökség
+36 46 508 317

Küldjön üzenetet

Visszahívást kérek

Hasonló ingatlanok