Eladó Lakás (panel) Budapest XIV. kerület - Alsórákos

60 m2Alapterület 3 Szoba
76 500 000 Ft Ár
394385Azonosító
További adatok

Panoráma Kilátás

Jó állapotú Állapot

Panel Szerkezet

1 m2 Erkély/terasz

Házközponti Fűtés

Összkomfort Komfort

Utcán, közterületen Parkolás

Emelet 5

Legfelső emelet

Van Lift

Kiváló Tömegközlekedés

Nem Amerikai konyhás

Nincs Kertkapcsolat

1995 Építés éve

Közös költség 30 000 Ft

Délnyugati Tájolás

Hitelkalkuláció – a részletekért kattintson valamelyik bank logójára!

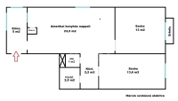
XIV. kerületben, Zugló kedvelt kertvárosában, parkosított környezetben, csendes mellékutcában, az Egressy tér közelében, 5 percre az Örs Vezér terétől, 90-es években épült utolsó generációs, 40 lakásos, folyamatosan karbantartott cseréptetős, liftes panel épületben, 60 nm-es, 3 szobás, amerikai konyhás, erkélyes, 5.emeleti, napos-világos DK és DNY-i tájolású, kiváló elosztású, külön nyíló szobás, házközponti fűtésű, alacsony fenntartású, közös költség fűtéssel, vízfelmelegítési díjjal: 30.000 Ft, egyedi mérős, jó állapotú, thermo ablakokkal szerelt, tehermentes, azonnal birtokba vehető lakás, beépített konyhával, kulturált lakóközösségű házban eladó!

A lakás tulajdoni lap szerint 55 nm-es, 2 szobás. A tulajdonosok a társasháztól megvásároltak további 5 nm-t, mely előszobaként funkcionál.

A lakásban 2020-ban a teljes elektromos hálózatot és a vizes helyiségeket felújították.

A vezetékek a lakás és a villanyóra között is cserélve lettek!!!

A parkolás közvetlen a ház előtt ingyenesen megoldott!!
A környék abszolút biztonságos, infrastruktúrája és közlekedése kitűnően ellátott.

Ha csendre-nyugalomra vágyik, de mégis biztonságos központi helyen szeretne élni, ez az Ön lakása! Befektetésre is tökéletes, pár nap alatt kiadható!!

Ezt a lakást érdemes megnézni!!
Várom megtisztelő hívását!!

(hétvégén is)
EA
Koterlán Ádám

Koterlán Ádám

Hívjon bizalommal

+36-70-617-Mutasd!

További hirdetéseim

Ingatlaniroda
GDN Ingatlanhálózat - Végső Ingatlanügynökség
+36 46 508 317

Küldjön üzenetet

Visszahívást kérek

Hasonló ingatlanok