Eladó Családi ház Hévíz - Belváros köz

101 m2Alapterület 4 Szoba
269 000 €(~ 97 020 230 Ft)
394816Azonosító
További adatok

1091 m2 Telek

Utcai Kilátás

Felújított Állapot

Tégla Szerkezet

Házközponti Fűtés

Saját beálló Parkolás

Tömegközlekedés

Nem Amerikai konyhás

2000 Építés éve

Hitelkalkuláció – a részletekért kattintson valamelyik bank logójára!

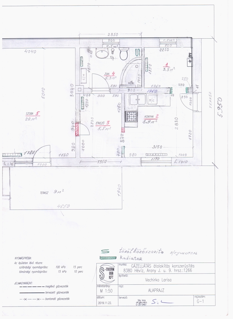
Eladó ez az egyszintes 101 m2-es családi ház Hévíz egyik csendes mellékutcájában. A lakóépülethez tartozó telek 1 091 m2 nagyságú.

Az téglából épített, igényesen kialakított épület 3 külön bejáratú lakrésszel rendelkezik, melyek közül 2 együttesen is használható. Az épület kapott egy külső 8 cm-es szigetelést, illetve az aljzatszigetelés is meg lett csinálva.

Az ingatlanban található négy szoba, három fürdőszoba, két konyha, 1 terasz, száraz pince, illetve további teraszok kialakításának is van lehetőség. Az épület fűtését egy gázkazán segítségével oldották meg radiátorokon keresztül, illetve megtalálható még egy kandalló is.
A melegvíz ellátásról 2 db bojler gondoskodik.

A ház a teljes berendezéssel együtt eladó, tehát bútorok, háztartási gépek, lámpák, tükrök, sötétítők benne vannak az eladási árban.

A kertben 12 db gyümölcsfa található: alma, szilva, cseresznye, őszibarack, sárgabarack, dió, szőlő, valamint tuják.

A hévízi termál tó 5 percre található autóval, élelmiszerbolt 200 m. Az egyik apartmant akár egész évben ki lehet adni, így kiváló bevételi forrást biztosít.
Végső Tibor

Végső Tibor

Hívjon bizalommal

+36 30 330 Mutasd!

További hirdetéseim

Ingatlaniroda
GDN Ingatlanhálózat - Végső Ingatlanügynökség
+36 46 508 317

Küldjön üzenetet

Visszahívást kérek

Hasonló ingatlanok