Eladó Családi ház Budapest XVIII. kerület - Pestszentlőrinc

80 m2Alapterület 2 + 1 Szoba
89 900 000 Ft Ár
394965Azonosító
További adatok

534 m2 Telek

Udvari Kilátás

Felújított Állapot

Tégla Szerkezet

24 m2 Erkély/terasz

Gáz (cirkó) Fűtés

Összkomfort Komfort

Saját beálló Parkolás

Tömegközlekedés

Nem Amerikai konyhás

Van Kertkapcsolat

1972 Építés éve

Délkeleti Tájolás

Hitelkalkuláció – a részletekért kattintson valamelyik bank logójára!

FELÚJÍTOTT ÖNÁLLÓ CSALÁDI HÁZ ELADÓ A XVIII. KERÜLETBEN!

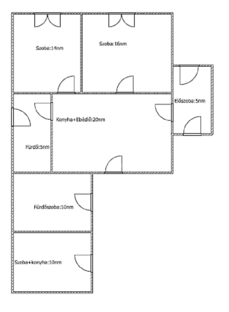
80 nm-es körbejárható családi házat kínálunk eladásra a XVIII. kerület csendes kertvárosi részén Pestszentlőrincen.

A HÁZRÓL:

530 nm-es telekkel rendelkezik.

A 80 nm-es kényelmes lakótér 2 részből áll, akár két generáció számára is.Földszintes, nem belső két szintes!

Első épület: Előszoba, ebédlős konyha, két külön nyíló szoba, fürdő, hátul nagy terasz,(meghagyva a lehetőséget beépítésre ha szükséges).A klimatizált ebédlős-konyhából, (nappaliból) van még egy kijárat a teraszra és a hátsó házrészbe.

Hátsó házrész: (Külön lakrész)Fürdőszoba, szoba-konyha.

Így dupla komfort áll rendelkezésre!

Műszaki adatok:

- Teljesen új tető,ùj nyílászárók.

- 2024- ben víz, villany, csatorna,teljes cseréje megtörtént.

- Fűtésről és meleg vízről gáz kondenzációs cirkó gondoskodik radiátorokkal.


- Egyedi designnal készített gipszkarton mennyezetek ,minőségi burkolatok képzik az ingatlan belső terét


- Hűtő-fűtő klíma.

Az új tulajdonosra, már csak a külső, szigetelés, (ha szükséges), vagy színezés vár. Parkolás a telken belül és ház előtt is több autóval lehetséges.

Ferihegy vasútállomás ,Béke tér 10 perc sétával elérhető,itt több buszjáratra is felülhetünk.

Iskola, óvoda, bolt a közelben megtalálható.

A TÖBB ÉVES SZAKMAI TAPASZTALATON TÚL - AZ ALÁBBIAKBAN TÁMOGATJUK MÉG AZ ADÁSVÉTELT:
- Megbízható ügyvédi háttér
- Energetikai tanúsítvány
- INGYENES, BANKFÜGGETLEN hitelügyintézés (megtaláljuk Önnek a legjobb konstrukciót)
- Állami támogatások: CSOK+ Babaváró támogatás,3 %-os hitel.
Parainé Stefán Edit

Parainé Stefán Edit

Hívjon bizalommal

+36-30-525-Mutasd!

További hirdetéseim

Ingatlaniroda
GDN Ingatlanhálózat - Végső Ingatlanügynökség
+36 46 508 317

Küldjön üzenetet

Visszahívást kérek

Hasonló ingatlanok